Advised by Hal Hayes
The small medieval town of Sibiu is the site for the third largest international theater festival in the world, and the site for the New Romanian National Theater sits at the front door to the city of Sibiu. Also serving as the threshold between the old medieval and modern city center. My theater proposal features a theater complex that rises in elevation towards the new part of the city with an uplifting gesture. Linked with the past, and welcoming an international audience, the Teatrul Viaţă aims to put Sibiu on the world stage of the theatrical arts.

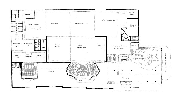
Not only does the building get taller in mass, it also lifts up, exposing the structure of the building and the activities happening inside, inviting wandering pedestrians into the theater from the busy Piata Unirii or Union Square intersection. The theater halls also rise in elevation based on the time periods they represent. The German Hall represents the historic period of the Saxon occupation of Transylvania during the expansion of the Habsburg empire. The Romanian hall represents present-day Romania after the German diaspora, and the experimental black box theater represents the excitement of the unforeseeable future of the theatrical arts in a voluptuous concrete volume that protrudes out of the west facade, literally breaking out of the box. The brick and copper facade are materials taken from the medieval palette of materials in the city, their brick buildings and medieval city walls and patina cupolae on the local churches. As a living theater, the facade turns green with age and oxidation.
As a projection surface for rooftop performances, the height of the fly loft mass is exaggerated (housing HVAC systems) so as to provide more surface, and also serve as an alluring node, attracting people from across the city. By doing so, the theater marks itself as a landmark icon of Sibiu. The first bird’s eyeview render above demonstrates the relationship between the two performance venues, the Piata Mare (foreground) and the new theater in the background.


























