Click to view full resolution image
Taught by Professor Gerard Damiani
Assignment 1: Exploded Axon of a bay of a building from a given section to understand the tectonics of construction
Assignment 2: Make a code review for an unbuilt Le Corbusier building and make changes to meet the required means of egress according to the IBC (2012)
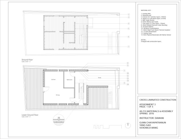
Assignment 3: Make detailed plans and exploded axonometric drawings of the Ed’s Shed designed by David Adjaye
Assignment 4: Make a code review and an exploded axonometric drawing of the New Media Center designed for studio.















